














фото · 1 из 15

Смотреть все фото
Смотреть на карте
Продажа коммерческого помещения на ул. Василия Стуса 35А, площадь 324.4 кв.м • ID 32816256
ЖК Be the One
Больше о новостройке
630 000 $ за объект · 26 598 600 грн · 1 942 $
за м²
Перевірене комерційне приміщення
продавец предоставил техпаспорт
Проверено по техпаспорту
Дата последней проверки 26 лют.
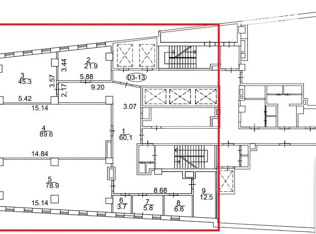
- Общая площадь 324.4 м² · полезная 264.3 м²
- 8 помещений
- 3 этаж из 19
Описание от продавца
- Бизнес-центр
- 8 помещений
- 3 этаж из 19
- Общая площадь 324.4 м² · полезная 264.3 м²
- Предложение от посредника
- Без комиссии
- Вторичная недвижимость
- Укрытие в доме
- Охраняемая территория
- Оперативный показ
- Без комиссии!
В ваше внимание предлагается коммерческое помещение в инновационном Бизнес-центре жилого комплекса Be the One по адресу Василя Стуса 35-37.
Пешая доступность до метро Житомирская и Академгородок.
Основные характеристики:
-Общая площадь составляет 324.4м2
-Высота потолков - 3.30 м
-3/21 этаж.
-Бизнес-центр класса А.
-Комплекс введен в эксплуатацию в 2022 году.
-Комфортная планировка.
-Лаунж-зоны.
-Спортзал.
-Высокоскоростные лифты Kone.
-Гостевая и подземная парковка.
-Рестораны, Кафе, Торговый центр.
Бизнес-центр оборудован современной системой безопасности, парковкой для сотрудников и гостей. Современная система кондиционирования, а также большие окна, обеспечивающие естественное освещение. Круглосуточная охрана и видеонаблюдение, что обеспечивает безопасность и защиту вашего бизнеса. Это идеальное место для развития вашего бизнеса и комфортной работы сотрудников.
- Характеристика здания: класс объекта: А • состояние: строительная отделка • отдельное помещение
- Характеристика помещения: высота потолка, м: 3.3 • утепление: внешнее
- Подогрев воды: централизованный
- Отопление: индивидуальное электрическое
- Оборудование • мебель • удобства: видеонаблюдение • пропускная система • электричество
- Когда нет света: есть интернет • есть мобильная связь • работает лифт • есть водоснабжение • работает отопление
- Подъезд: охранник • сигнализация • видеонаблюдение на территории • противопожарная система
- На территории есть: стоянка для автомобилей: подземная парковка • забор
Объявление неактуально или информация неточна?
- Объявление создано 26 лют. ·
- ID 32816256 ·
- Просмотров 0
- · Сохранений в избранное 0
Информация о ЖК
Дом
Подземный паркинг, автостоянка
41 паркоместо
Закрытая территория
Чистовая внутренняя отделка, внутренняя отделка под ключ
Монолитно-каркасный дом
19-21 этаж
Индивидуальное отопление
Стены из газоблока
Утепленный минеральной ватой
Договор купли-продажи имущественного права
Высота потолков до 3.6 м
Класс бизнес
403 квартиры
|
Пользуется спросом на DIM.RIA
Вас могут заинтересовать
Недвижимость в Киеве по назначению