
















фото · 1 из 17

Смотреть все фото
Смотреть на карте
Продажа коммерческого помещения на ул. Михайловская 12, площадь 1481.4 кв.м • ID 33479459
4 443 000 $ за объект · 187 316 880 грн · 3 000 $
за м²
Перевірене комерційне приміщення
продавец предоставил техпаспорт
Проверено по техпаспорту
Дата последней проверки 6 сен.
- Общая площадь 1481.4 м² · полезная 1057.4 м²
- 40 помещений
- 1 этаж из 4
- Участок 10 м²
Описание от продавца
- Здание / комплекс / павильон
- 40 помещений
- 1 этаж из 4
- Общая площадь 1481.4 м² · полезная 1057.4 м²
- Участок 10 м²
- Предложение от посредника
- Без комиссии
- Вторичная недвижимость
- Свет 24/7
- Торг уместен
- В центре
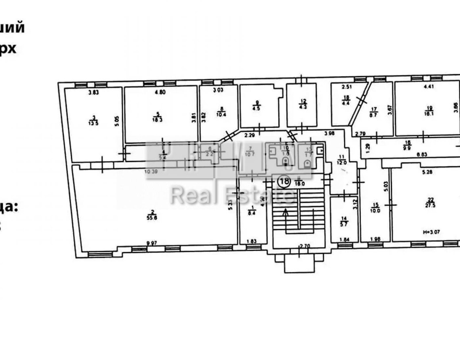
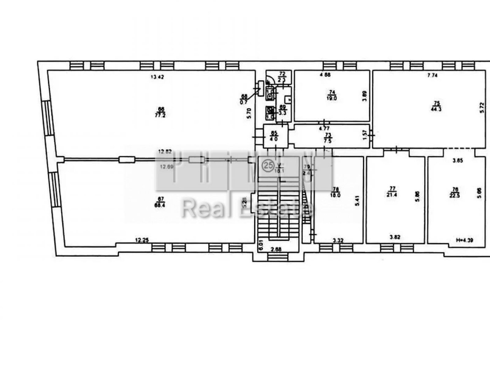
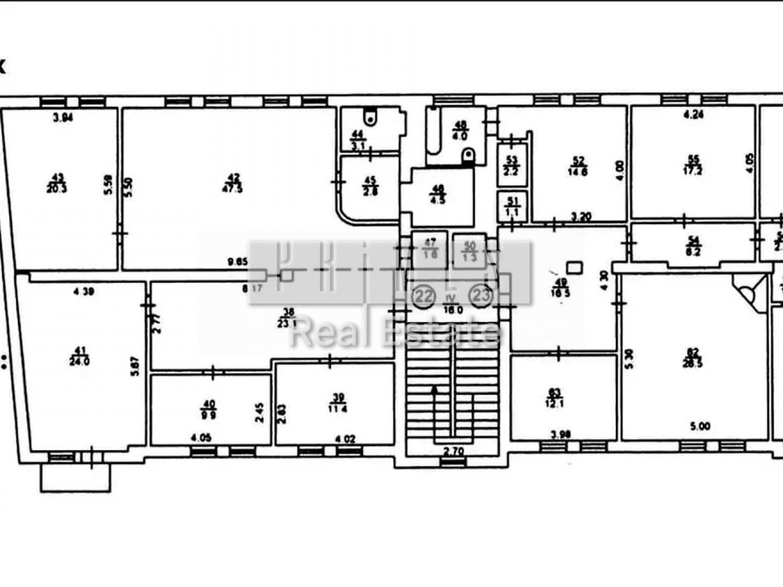
- Бизнес-центр в сердце Киева ул. Михайловская, 12-Б
Предлагается бизнес-центр общей площадью 1481 м², расположенный в самом центре столицы, в 2 минутах пешком от метро «Майдан Незалежності» и «Хрещатик».
Характеристики здания:
4 этажа + подвал
Общая площадь: 1481, 4 м²
Введенная мощность: 200 кВт
Централизованное отопление и кондиционирование
Водоснабжение и водоотведение
Металлопластиковые окна
Планирование:
Подвал: 262, 5 м²
1 этаж: 280, 3 м²
2 этаж: 302, 9 м²
3 этаж: 305, 8 м²
4 этаж (мансарда + антресоль): 329, 9 м²
Инфраструктура рядом:
кофейни и рестораны для бизнес-ланчей;
банки и обменные пункты;
супермаркеты, аптеки и магазины;
парк им. Тараса Шевченко, Владимирский пешеходный мост;
театры, галереи, культурные пространства.
Безопасность:
охрана 24/7;
карточная система доступа;
пожарная сигнализация;
укрытие на цокольном этаже с двумя входами;
система оповещения во время воздушной тревоги.
- Характеристика здания: класс объекта: C • состояние: удовлетворительное • отдельное здание
- Характеристика помещения: утепление: внутреннее
- Отопление: централизованное
- Подогрев воды: централизованный
- Помещения: офисные помещения • кабинет • хол
- Оборудование • мебель • удобства: пропускная система • электричество
- Когда нет света: есть интернет • есть мобильная связь • есть водоснабжение • работает отопление
- Подъезд: видеонаблюдение на территории • видеонаблюдение в помещении
- На территории есть: стоянка для автомобилей: открытая
Объявление неактуально или информация неточна?
- Объявление создано 6 сен. ·
- ID 33479459 ·
- Просмотров 0
- · Сохранений в избранное 0
Пользуется спросом на DIM.RIA
Вас могут заинтересовать
Недвижимость в Киеве по назначению