














фото · 1 из 15

Смотреть все фото
Смотреть на карте
Продажа коммерческого помещения на ул. Иоанна Павла II 10 корпус 3, площадь 270 кв.м • ID 33691175
197 000 $ за объект · 8 346 890 грн · 730 $
за м²
Перевірене комерційне приміщення
Проверено по видеозвонку
Отчет от 7 ноя.
- Вторичная недвижимость
- 7 помещений
- Цокольный этаж из 4
- Участок 2 сотки
- Предложение от посредника
- Без комиссии
Описание от продавца
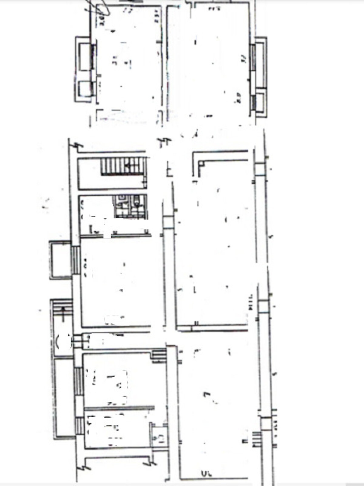
- Нежилое помещение в жилом доме
- Общая площадь 270 м²
- Престижный район
- Спокойный район
- В центре
- Без коміссії !! Продаж комерційного приміщення 270 кв.м. в центрі столиці
Іоана Павла II (Патриса Лумумбы) буд. 10, корпус 3.
Цокольне приміщення з окремим входом та вікнами.
По документам: два н/ф (~220м) та ж/ф (~50м)
Оточене самими найкращими ЖК Печерського району: ЖК Taryan Tower, ЖК Бульвар Фонтанів, ЖК Престиж Холл, Французький Квартал обидва, ЖК Централ Парк, ЖК Greenville...
Висота приміщення Н-2, 55+
Приміщення підготовлено для ремонту.
Всі аналогічні приміщення в сусідніх будинках у цокольних та на перших поверхах вже облаштовані під комерцію та приносять власникам прибуток
Двір з шлагбаумом
Право власності на юр.особі вже давно.
- Двор: Автоматические ворота
- Характеристика здания: для хранения вещей • фасадное помещение • отдельное помещение • часть здания
- Характеристика помещения: высота потолка, м: 2.55 • утепление: без утепления
- Подогрев воды: нет
- Отопление: без отопления
- Помещения: комната для отдыха • офисные помещения
- Когда нет света: работает отопление
- Подъезд: кодовый замок • бронированная дверь • видеонаблюдение на территории
- На территории есть: стоянка для автомобилей: открытая • забор
- Оборудование • мебель • удобства: электричество
Объявление неактуально или информация неточна?
- Объявление создано 7 ноя. ·
- ID 33691175 ·
- Просмотров 0
- · Сохранений в избранное 0
Пользуется спросом на DIM.RIA
Вас могут заинтересовать
Недвижимость в Киеве по назначению