










фото · 1 из 11

Смотреть все фото
Смотреть на карте
Продажа коммерческого помещения на ул. Конча-Заспинская 12, площадь 85 кв.м • ID 33737036
ЖК Лисовый 2
Больше о новостройке
85 000 $ за объект · 3 611 650 грн · 1 000 $
за м²
Перевірене комерційне приміщення
продавец предоставил техпаспорт
Проверено по техпаспорту
Дата последней проверки 23 лис.
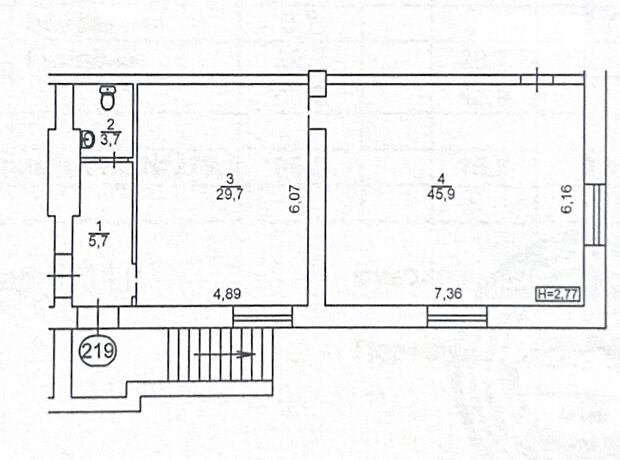
- Общая площадь 85 м² · полезная 75.6 м²
- 2 помещения
- Цокольный этаж из 14
- Участок 85 м²
Описание от продавца
- Нежилое помещение в жилом доме
- 2 помещения
- Цокольный этаж из 14
- Общая площадь 85 м² · полезная 75.6 м²
- Участок 85 м²
- Предложение от собственника
- Без комиссии
- Вторичная недвижимость
- Престижный район
- Спокойный район
- Оперативный показ
- Предлагается к продаже коммерческое помещение с ремонтом в жилом доме по адресу: Голосеевский район, ул. Конча-Заспинская, 12.
Площадь: 85 м²
Высота потолков: 2, 75 м
Этаж: цокольный, собственный отдельный вход.
Планирование:
Основное помещение 45, 9 м² и 29, 7 м².
Просторный зал с возможностью разместить клиентскую зону, торговую часть или производство.
Коридор 5, 7 м² (оборудован под кухню)
Туалет 3, 7 м²
Преимущества:
Отдельный фасадный вход удобно для бизнеса с активным клиентским потоком.
Тихая зеленая зона Голосеево, рядом жилые дома стабильный потенциал местных посетителей.
Полностью сделан ремонт, помещение чистое и готово к работе.
Установлено освещение и вентиляция.
Возможность перепланировки под свой формат.
В этом доме доступны еще 3 помещения с ремонтом разных площадей и планировок во время просмотра сможете выбрать оптимальный вариант для своего бизнеса.
Кроме того, есть возможность объединить это помещение с соседним (+44, 6 кв.м), которое также продается, чтобы получить большую площадь и масштабировать бизнес.
Прекрасный вариант для кафе, мастерской, салона, пекарни, офиса, небольшого производства, шоурума или пункта выдачи.
- Характеристика здания: класс объекта: А+ • состояние: отличное • тип дома: в жилом доме • часть здания
- Характеристика помещения: высота потолка, м: 2.77 • утепление: внешнее
- Пол (покрытие): керамическая плитка
- Коммуникации: вентиляция / кондиционирование: вентиляция
- Отопление: автономная котельная
- Подогрев воды: бойлер
- Помещения: офисные помещения • кабинет
- Оборудование • мебель • удобства: холодильное оборудование • электричество
- Подъезд: видеонаблюдение на территории • противопожарная система
- На территории есть: стоянка для автомобилей: не оборудована
Объявление неактуально или информация неточна?
- Объявление создано 23 лис. ·
- ID 33737036 ·
- Просмотров 0
- · Сохранений в избранное 0
Информация о ЖК
Дом
Наземный паркинг
Кирпичный дом
15 этажей
Класс комфорт
Пользуется спросом на DIM.RIA
Вас могут заинтересовать
Недвижимость в Киеве по назначению