
















фото · 1 из 17

Смотреть все фото
Смотреть на карте
Продажа коммерческого помещения на ул. Вискозная 4Д, площадь 923.3 кв.м • ID 33210528
390 000 $ за объект · 16 407 300 грн · 422 $
за м²
Перевірене комерційне приміщення
продавец предоставил техпаспорт
Проверено по техпаспорту
Дата последней проверки 21 июн.
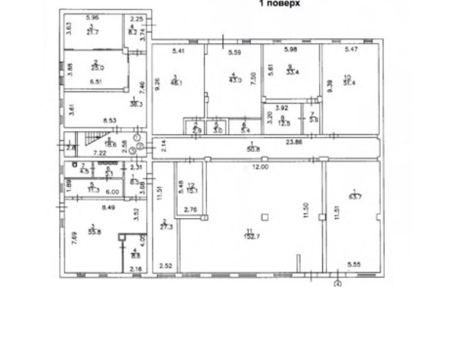
- Общая площадь 923.3 м² · полезная 679.6 м²
- 26 помещений
- 1 этаж из 2
- Участок 3229 м²
Описание от продавца
- Здание / комплекс / павильон
- 26 помещений
- 1 этаж из 2
- Общая площадь 923.3 м² · полезная 679.6 м²
- Участок 3229 м²
- Кадастровый номер 8000000000:62:068:0206
- Предложение от собственника
- Без комиссии
- Вторичная недвижимость
- Спокойный район
- Оперативный показ
- Выгодная цена
- Месторасположение объекта ул. Вискозная, 4Д. Ближайшая станция метро Черниговская. Прямой заезд с ул. Вискозная. Объект недвижимости, площадь здания 923, 3 м2 с земельным участком пригоден для строительства, реконструкции и эксплуатации здания с многофункциональным назначением, для организации производственно-складского помещения, организации логистического центра, под СТО. Площадь земельного участка 0, 3223 га, кадастровыйXXXXXXXX (XXX) XXX-XX-XX 206Земельный участок равнинный, прилегающий к проезжей части. Объект размещен недалеко от пересечения оживленных транспортных автомагистралей. Назначение Для размещения и эксплуатации основных, подсобных и вспомогательных зданий и сооружений предприятий перерабатывающей, машиностроительной и другой промышленности Категория Земли промышленности, транспорта, связи, энергетики, обороны и другого назначения Продавец, юридическое лицо, ценная с ндс. Большая площадка для парковки транспорта и его обслуживания.
- Характеристика здания: состояние: требует ремонта • отдельное здание
- Характеристика помещения: высота потолка, м: 6.3 • утепление: без утепления
- Подогрев воды: бойлер
- Отопление: индивидуальное электрическое
- Помещения: офисные помещения • кабинет
- На территории есть: стоянка для автомобилей: не оборудована
- Характеристика участка: рельеф: равнинный
- Оборудование • мебель • удобства: электричество
Объявление неактуально или информация неточна?
- Объявление создано 21 июн. ·
- ID 33210528 ·
- Просмотров 0
- · Сохранений в избранное 0
Пользуется спросом на DIM.RIA
Вас могут заинтересовать
Недвижимость в Киеве по назначению