












фото · 1 из 13

Смотреть все фото
Смотреть на карте
Продажа 2 этажного дуплекса с участком на 2.5 сотки, 113 кв. м, 3 комнаты, на ул. Северина Наливайко • ID 33552271
Северина Наливайко улица
·
Великие Гаи
79 100 $ за объект · 3 327 737 грн · 700 $
за м²
Перевірений дуплекс
Проверено по видеозвонку
Отчет от 16 окт.
- Новостройка
- 3 комнаты
- 2 этажа
- Участок 2.5 сотки
- Предложение от представителя застройщика
- С бассейном
Описание от продавца
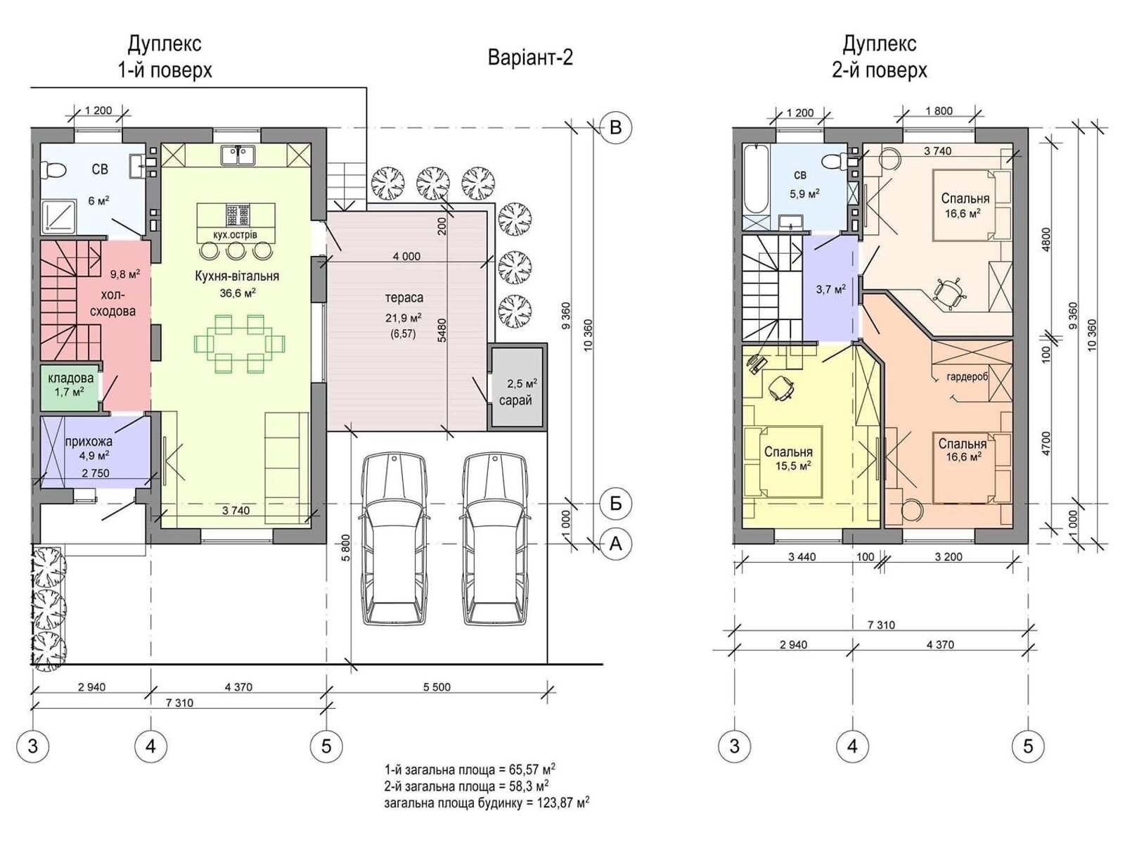
- Общая площадь 113 м² · жилая 45 м² · кухня 33.3 м²
- Стены из кирпича
- Сдача в 2025
- Возле леса
- ________ПРОДАЖА ДУПЛЕКСОВ_________
село Великие Гаи ️ пригород Тернополя
площадь дома для одной семьи может составлять 113м2 или 124м2
возможность выбрать планировку, которая вам подойдет больше всего (️два варианта на выбор)
придомовая территория для одной семьи от 2, 5 сотки
просторная терраса, крытый паркинг для авто, бассейн - индивидуально под пожелания каждого клиента;
удобное расположение - рядом школа, супермаркет, аптека, стадион асфальтированная дорога все коммуникации
стоимость - от 79 100 Дол
Лояльные варианты оплаты!
Сдача объекта в эксплуатацию IV квартал 2025 года!!
Чтобы узнать больше деталей️
XXX XXX XX XX Наталья Кутрань
#дуплекс#великие_гаи#ан_pro100dim#кирпичный_дом#купить_коттедж#выгодное_предложение
- Характеристика здания: состояние дома: строительная отделка • перекрытие: железобетонное
- Характеристика помещения: высота потолка, м: 2.8 • утепление: внешнее
- Помещения: количество спален: 3 • бассейн
- На территории есть: персональный водоем: бассейн
- Особенности планировки: терраса
- Уникальные преимущества: Возможна рассрочка
Объявление неактуально или информация неточна?
- Объявление создано 16 окт. ·
- ID 33552271 ·
- Просмотров 0
- · Сохранений в избранное 0