













фото · 1 из 14

Смотреть все фото
Смотреть на карте
Продажа 2 этажного дуплекса с участком на 3.5 сотки, 150 кв. м, 3 комнаты, на ул. Фонтанная 20 • ID 33670164
Фонтанная улица
·
Подгорцы (Обухов)
139 000 $ за объект · 5 847 730 грн · 927 $
за м²
Перевірений дуплекс
Проверено по видеозвонку
Отчет от 1 ноя.
- Новостройка
- 3 комнаты
- 2 этажа
- Участок 3.5 сотки
- Предложение от представителя застройщика
- Без комиссии
- С бассейном
- Беседка
Описание от продавца
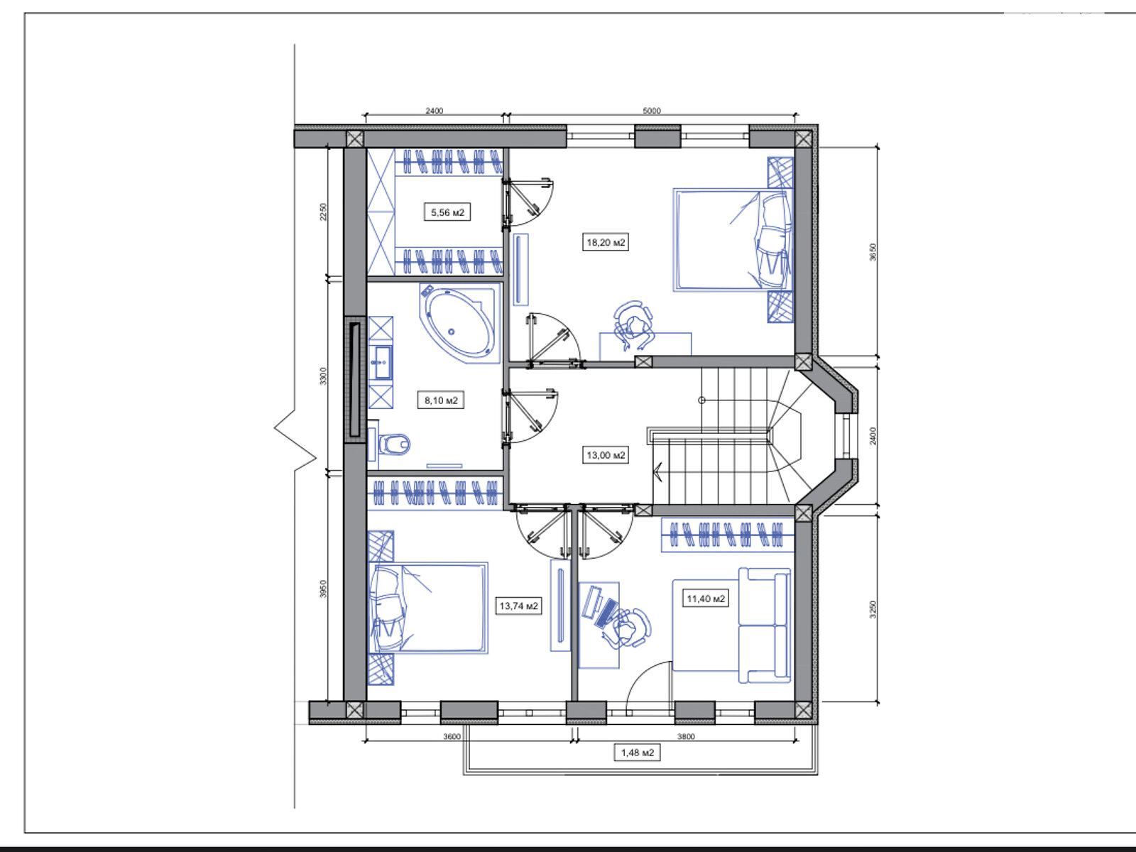
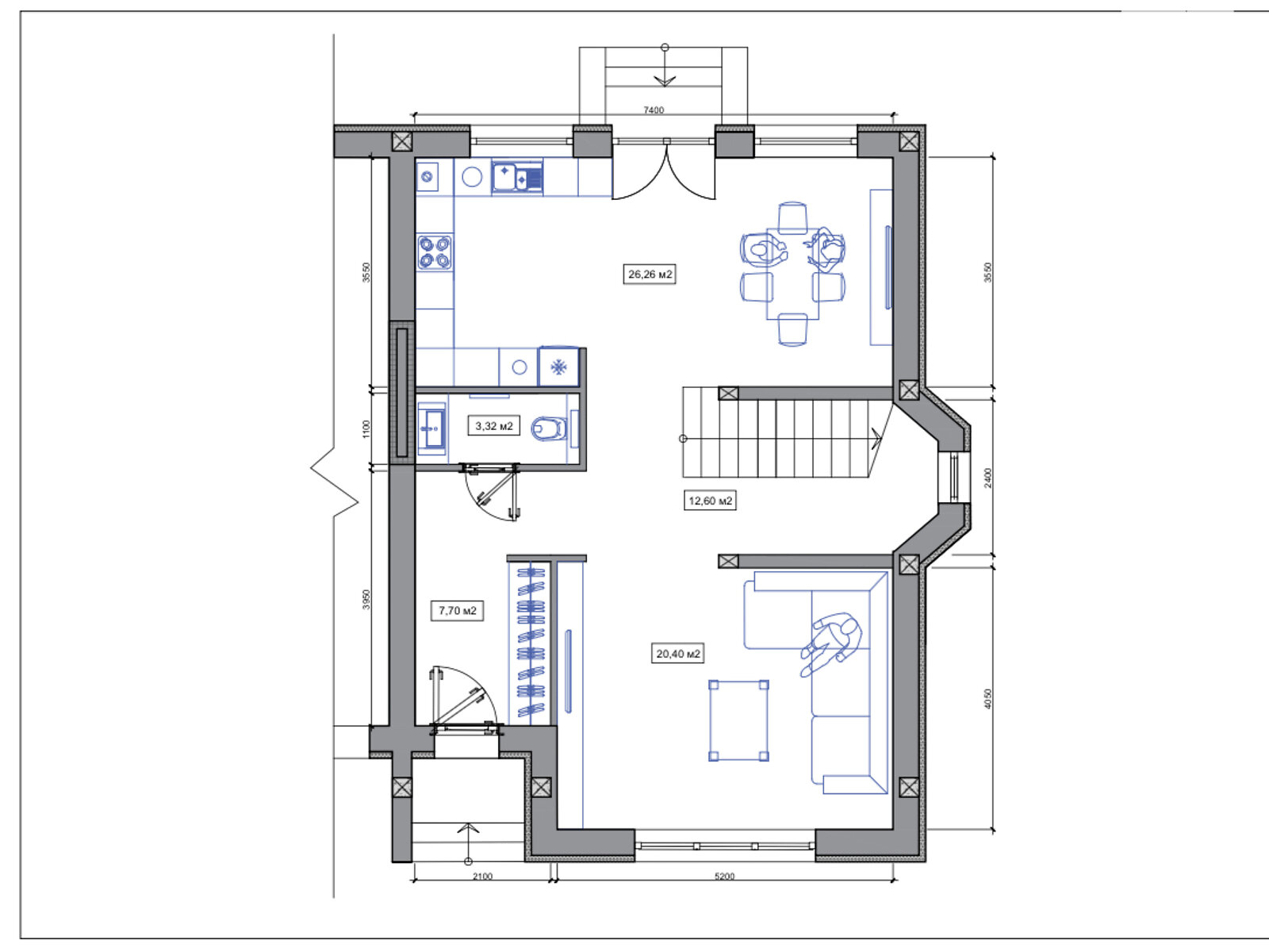
- Общая площадь 150 м² · жилая 64 м² · кухня 26.26 м²
- Стены из кирпича
- Построен в 2021
- Комбинированное
- Кадастровый номер 3223186801:13:009:0254
- єВідновлення
- єОселя
- Возле леса
- Жилье не использовалось с момента постройки
- Продажа дуплекса в престижном городке Подгорцы «Фонтаны».
Площадь 150 м², участок 3.5 сотки. Дом в состоянии под ремонт идеальная возможность реализовать дизайн под себя.
Преимущества:
закрытая территория, охрана
аллея с фонтаном, детская площадка
зона отдыха с бассейном
зона барбекю
красивый ландшафт, хвойные насаждения
соседство премиум-класса
1520 мин до Киева.
Планирование (возможность):
кухня-гостиная с выходом на террасу
3 спальни
2 санузла
мансардный этаж (кабинет/главная спальня)
Всего на территории 24 дома. Территория комплекса под круглосуточной охраной. Обслуживает ЖК местная управляющая компания.
Есть место для парковки двух авто! Качественное строительство:
- Стены - красный керамический кирпич.
- Кровля черепица.
- Утепление фасада, кровли минеральная вата 15 см.
- Маячная штукатурка.
- Остекление двухкамерные энергосберегающие стеклопакеты KBE.
- Централизованное водоснабжение из собственной скважины (заведено в дом).
- В дом подведен газ и электричество.
- Септик - на каждый дом.
Цена 139000$, без комиссии.
Приглашаю на просмотр!
- Вход в дом: Вход без порогов
- Характеристика здания: состояние дома: требует ремонта • перекрытие: смешанное • крыша: черепица (керамическая)
- Характеристика помещения: высота потолка, м: 3.3 • утепление: внешнее
- Отделка потолка: без обработки • штукатурка
- Пол (покрытие): без отделки
- Коммуникации: канализация: септик
- Отопление: централизованное • централизованное • газовое • электрическое
- Подогрев воды: нет
- Помещения: количество спален: 3 • гараж: нет • гостиная • бассейн
- Когда нет света: есть газ
- Подъезд: охранник • видеонаблюдение на территории
- На территории есть: персональный водоем: бассейн • ландшафтный дизайн • детская площадка • барбекю • забор
- Мебель: нет
- Особенности планировки: панорамные / витринные окна
- Уникальные преимущества: С беседкой • Индивидуальное отопление • скважина
- Оборудование • мебель • удобства: электричество • газ • вывоз отходов • канализация септик
Объявление неактуально или информация неточна?
- Объявление создано 1 ноя. ·
- ID 33670164 ·
- Просмотров 0
- · Сохранений в избранное 0