


















фото · 1 из 19

Смотреть все фото
Смотреть на карте
Продажа 2 этажного дуплекса с участком на 2.5 сотки, 140 кв. м, 4 комнаты, на ул. Полтавская • ID 33652277
Полтавская улица
·
Петропавловская Борщаговка
230 000 $ за объект · 9 676 100 грн · 1 643 $
за м²
Перевірений дуплекс
Проверено по видеозвонку
Отчет от 27 окт.
- Вторичная недвижимость
- 4 комнаты
- 2 этажа
- Участок 2.5 сотки
- Предложение от представителя застройщика
- Без комиссии
Описание от продавца
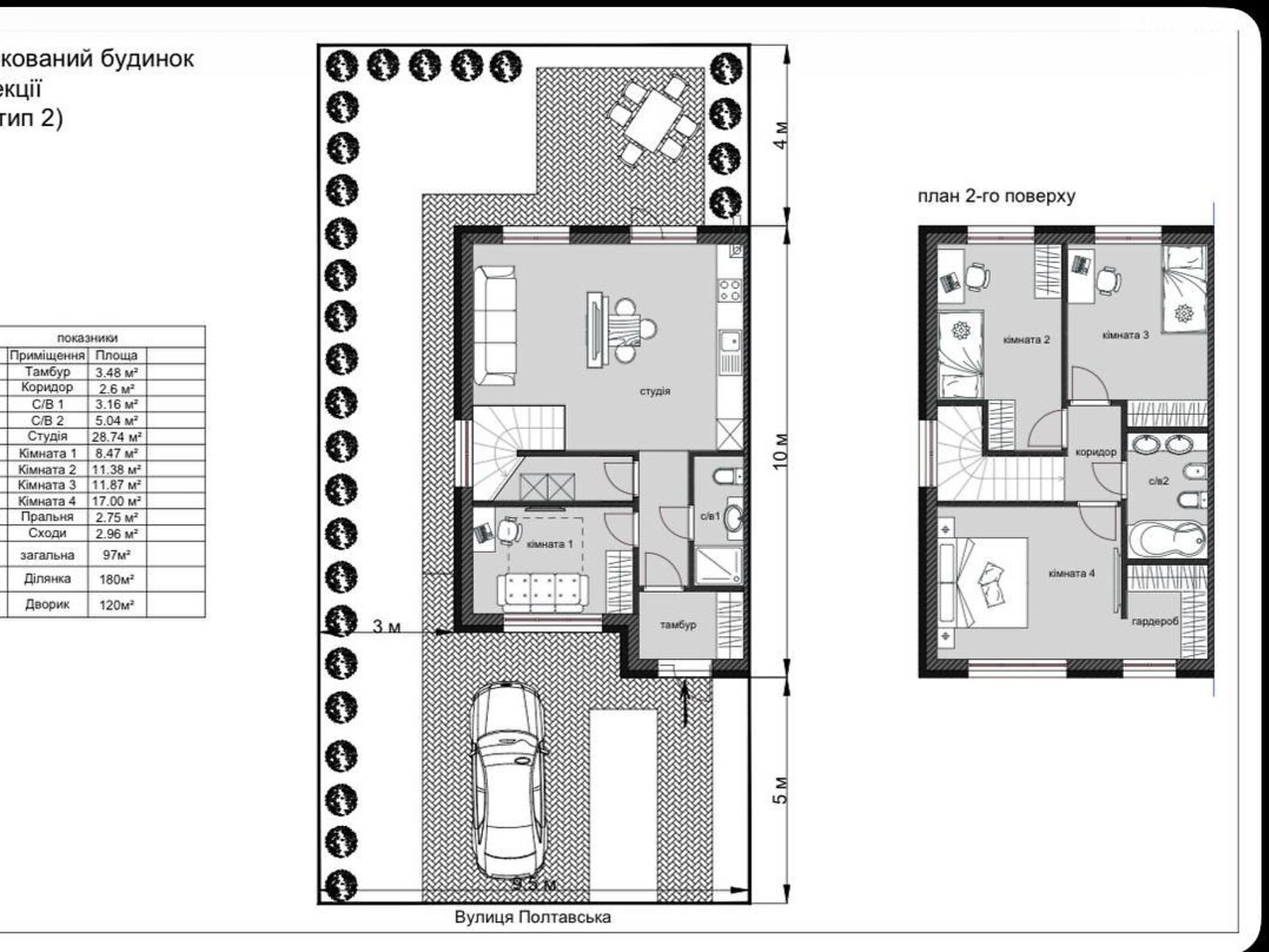
- Общая площадь 140 м²
- Стены из керамического блока
- Продажа дуплекса БЕЗ КОМИССИИ с подвалом!
Великий обустроенный подвал + 2 отдельные комнаты в нем!
Площадь: 100м2 + подвал!!!
Участок : 2 сотки
Коммуникации:
Газ
Централизованная канализация
Централизованное водоснабжение
Электричество 10 кВт (3 фазы)
В доме выполнен качественный ремонт, очень стильный и продуманный до мелочей.
Тёплый пол первый этаж и СВ.
Прекрасное планирование :
На первом этаже - просторная входная группа, где уже установлена шкаф для верхней одежды и зеркало с
подсветкой, жилая комната, санузел с душевой, кухня-гостиная с выходом на задний двор.
На втором этаже - три жилые комнаты (одна из которых гардеробная) и большой санузел с ванной.
Кухня укомплектована всей необходимой техникой:
Духовой шкаф
Посудомоечная машина
Холодильник
Газовая варочная поверхность.
В доме индивидуальное газовое отопление - установлен двухконтурный газовый котел.
Впереди дома 2 парковочных места и две зарядки для электрокаров.
Есть много других вариантов от этого застройщика, как с ремонтом так и без. Звоните!
Объявление неактуально или информация неточна?
- Объявление создано 27 окт. ·
- ID 33652277 ·
- Просмотров 0
- · Сохранений в избранное 0