



















фото · 1 из 20

Смотреть все фото
Смотреть на карте
Продажа 2 этажного дуплекса с участком на 3.5 сотки, 125 кв. м, 4 комнаты, на ул. Независимости 5 • ID 33651605
улица Независимости
·
Ирпень
90 000 $ за объект · 3 798 000 грн · 720 $
за м²
Перевірений дуплекс
Проверено по видеозвонку
Отчет от 27 окт.
- Новостройка
- 4 комнаты
- 2 этажа
- Участок 3.5 сотки
- Предложение от посредника
- Без комиссии
Описание от продавца
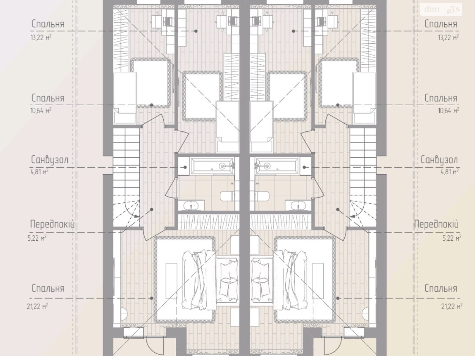
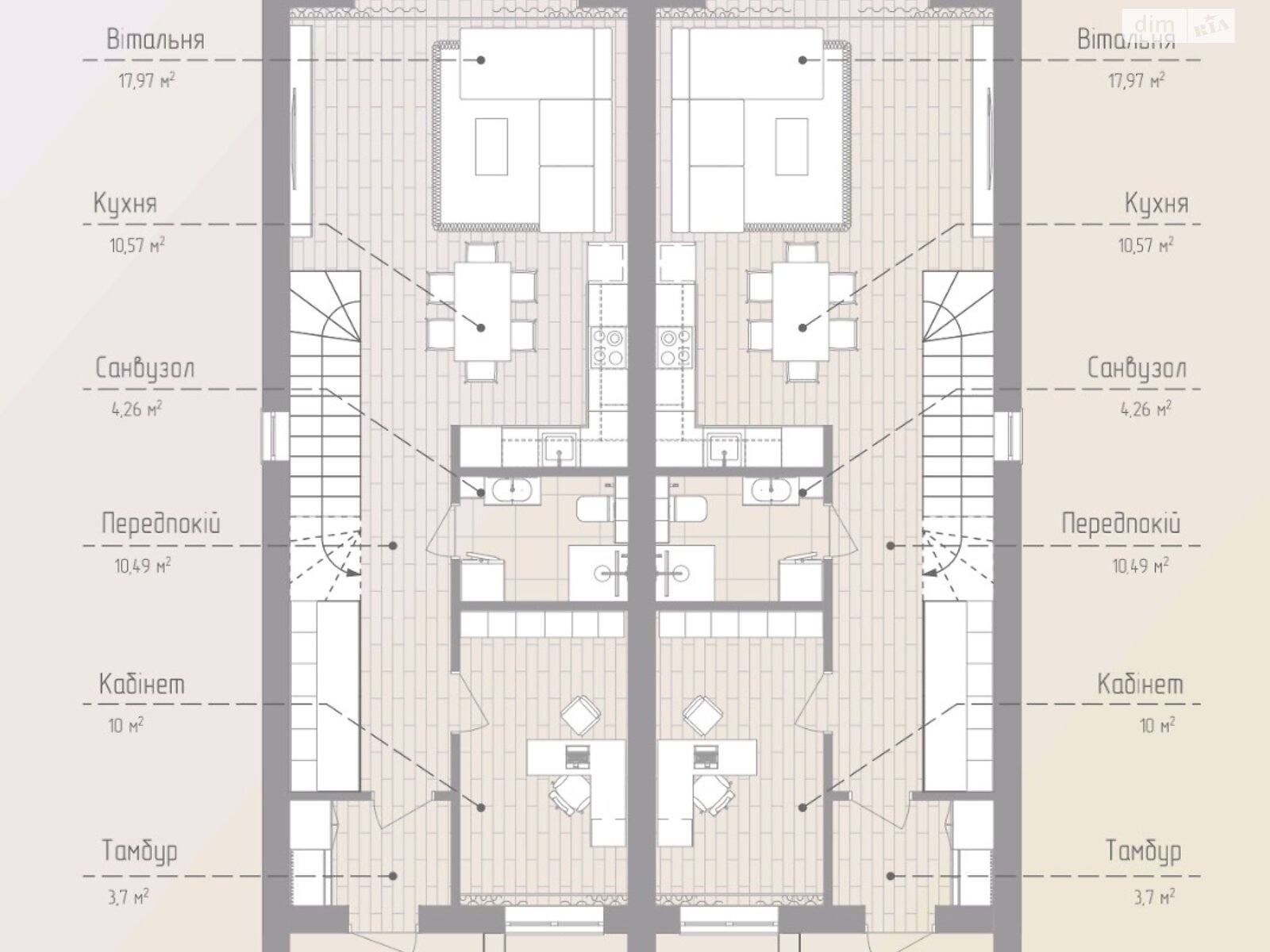
- Общая площадь 125 м² · жилая 55 м² · кухня 28 м²
- Стены из кирпича
- Построен в 2024
- Индивидуальное отопление
- Возле леса
- Оперативный показ
- Выгодная цена
- Продаж Дуплекс 125 м2
- Характеристика здания: состояние дома: требует ремонта • перекрытие: железобетонное • крыша: металлочерепица
- Характеристика помещения: высота потолка, м: 2.8 • утепление: внешнее
- Отделка потолка: без обработки
- Пол (покрытие): стяжка
- Отопление: электрическое
- Подогрев воды: бойлер
- Помещения: количество спален: 4 • гараж: нет • котельная / бойлерная
- Когда нет света: есть мобильная связь
- Подъезд: бронированная дверь
- Мебель: нет
- Особенности планировки: терраса
- Уникальные преимущества: Индивидуальное отопление • скважина
- Оборудование • мебель • удобства: электричество • интернет • канализация септик
Объявление неактуально или информация неточна?
- Объявление создано 27 окт. ·
- ID 33651605 ·
- Просмотров 0
- · Сохранений в избранное 0