









фото · 1 из 10

Смотреть все фото
Смотреть на карте
Продажа 1 этажного дома с участком на 4.8 сотки, 102 кв. м, 2 комнаты • ID 33700148
108 000 $ за объект · 4 554 360 грн · 1 059 $
за м²
В процессе проверки
Сейчас DIM.RIA ждет данных от продавца
Продавец сообщил, что готов пройти проверку на DIM.RIA. Как только получим документы или видео об этом объекте – сразу все расскажем тебе.
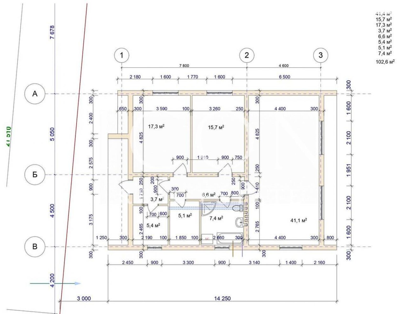
- 2 комнаты · 1 этаж
- Общая площадь 102 м²
- Участок 4.8 сотки
- Стены из кирпича
- Предложение от посредника
- Без комиссии
- Вторичная недвижимость
Описание от продавца
- Продажа одноэтажного дома в стиле барнхаус в хорошей локации с. Вита-Поштова! Возможна рассрочка! Без комиссии!
Площадь: 102м2
Участок: 4.8 соток
Планирование:
- кухня-студия с выходом на террасу
- 2 комнаты
- 1 санузел
- котельная
- гардеробная
Материалы строительства:
- стены - газоблок;
- стены снаружи - утеплитель минеральная вата 100мм.
- фундамент из бетона м350;
- фасады дома системы Ceresit элементы декора из клинкерной плитки;
- высота потолка 3м;
- крыша покрыта вальцовым металлом, утепленная минеральной ватой толщиной 200 мм.
Коммуникации:
- переливной септик 8м3
- скважина с водой 50 м;
- электричество 10кВт, 3 фазы
Отопление: индивидуальное от электричества.
Есть возможность подключить ГАЗ (по улице).
В комплектацию входит:
- ограждение с забором (профнастил колоннами из декор. блоков) с бетонным фундаментом по периметру всего участка;
- ворота (откатные) и калитка;
- заезд и парковка на 2 машины;
- тротуарная плитка;
- рулонный газон;
- бетонная терраса.
Инфраструктура рядом: супермаркеты, ресторан.
В пешей доступности лес и озеро.
Обитаемая улица. Асфальтированный подъезд.
#2098
- Характеристика здания: состояние дома: требует ремонта
- Отопление: газовое
Объект не такой, как в описании?
Расскажи нам, что не так – мы все проверим
- Объявление создано 10 ноя. ·
- ID 33700148 ·
- Просмотров 0
- · Сохранений в избранное 0