













фото · 1 из 14

Смотреть все фото
Смотреть на карте
Продажа 1 этажного дома с участком на 7 соток, 135 кв. м, 3 комнаты, на ул. Приднепровская • ID 33693394
КГ Зоряний 2
Больше о новостройке
135 000 $ за объект · 5 692 950 грн · 1 000 $
за м²
В процессе проверки
Сейчас DIM.RIA ждет данных от продавца
Продавец сообщил, что готов пройти проверку на DIM.RIA. Как только получим документы или видео об этом объекте – сразу все расскажем тебе.
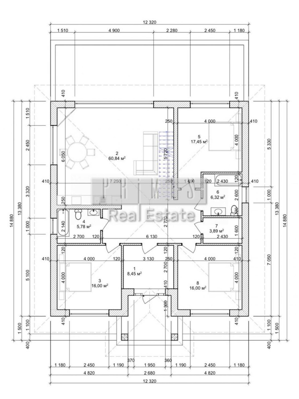
- 3 комнаты · 1 этаж
- Общая площадь 135 м² · жилая 110 м² · кухня 20 м²
- Участок 7 соток
- Стены из кирпича
- Сдача в 2025
- Предложение от представителя застройщика
- Без комиссии
- Вторичная недвижимость
Описание от продавца
- С участком
- У реки
- Спокойный район
- Современный дом площадью 135 м², возведенный из качественного керамоблока на ленточном фундаменте с монолитной плитой. Продуманная планировка обеспечивает комфорт для семьи:
вы получаете дом с альтернативным источником питания!
три отдельные жилые комнаты;
два санузла;
техническое помещение;
просторная кухня-гостиная с выходом на террасу.
Дом расположен в уютном жилом массиве недалеко от центра села. Из окон открывается вид на лес. Рядом - парк, детская площадка, два озера для прогулок и отдыха. В пешей доступности садик, школа, магазины, кафе и рестораны. До Киева - лишь 20-25 минут на авто до метро «Бориспольская».
Участок - 8 соток: достаточно места для сада, бассейна или летней зоны отдыха.
Этот дом - хороший выбор для тех, кто хочет спокойствие загородной жизни рядом с городом, в комфортной и ухоженной обстановке.
Позвоните, чтобы договориться о просмотре и увидеть все своими глазами.
- Характеристика здания: состояние дома: без отделочных работ • перекрытие: смешанное • крыша: шифер
- Характеристика помещения: утепление: внутреннее
- Отопление: твердотопливный котел • газовое
- Помещения: количество спален: 2 • гараж: нет • гостиная • раздельный санузел
- На территории есть: детская площадка • сад
- Мебель: нет
- Оборудование • мебель • удобства: электричество • газ • канализация септик
- Уникальные преимущества: скважина
Объект не такой, как в описании?
Расскажи нам, что не так – мы все проверим
- Объявление создано 7 ноя. ·
- ID 33693394 ·
- Просмотров 0
- · Сохранений в избранное 0
Информация о ЖК
Дом
Наземный паркинг
Шлагбаум
Чистовая внутренняя отделка, внутренняя отделка под ключ
Монолитно-каркасный дом
1 этаж
Стены из керамоблока
Утепленный минеральной ватой
Договор купли-продажи
Высота потолков 3.25 м
Класс комфорт
6 домов
Площадь застройки 60 соток
|