












фото · 1 из 13
Продажа 1 этажного дома с участком на 5 соток, 114 кв. м, 1 комната, на ул. Евгения Маланюка 11 • ID 33941633
90 000 $ за объект · 3 905 100 грн · 789 $
за м²
Информация неточна?
Продавец не подтвердил данные об этой недвижимости. Расскажите, что не так, и мы проверим
Без проверки
Продавец не подтвердил информацию об этом объекте (не заказывал проверку с представителем DIM.RIA, не отправлял видео или документы)
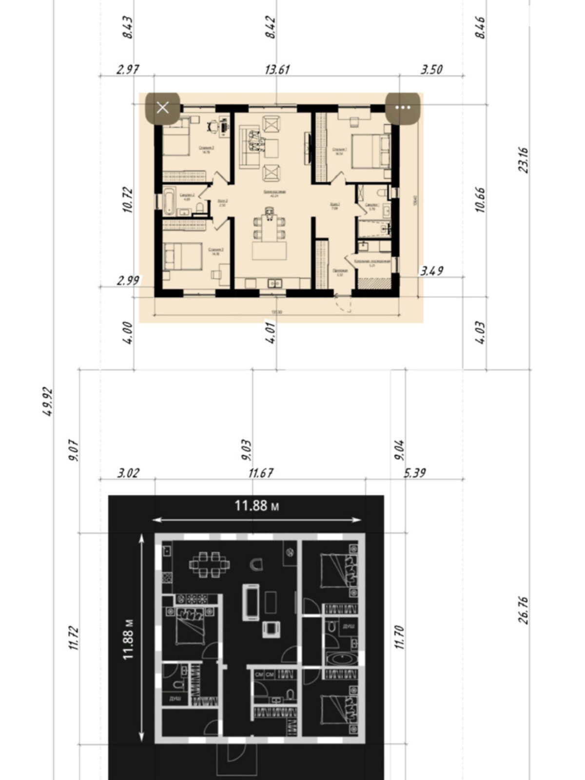
- 1 комната · 1 этаж
- Общая площадь 114 м²
- Участок 5 соток
- Стены из кирпича
- Сдача в 2026
- Возможна переуступка
- Кадастровый номер 5610100000:01:066:0126
- Предложение от собственника
- Без комиссии
- єВідновлення
- Новостройка
- єОселя
- У озера
Описание от продавца
- Два дома отдельно стоящих
Первый этаж 114 кв.м.
Площадь земельного участка 4.22 сотки.
Размер земельного участка
26, 5 метра на 16 метров
В комплектацию входит
Ленточный фундамент на сваях
И эта плита с арматурной сеткой 10 см.
Кладка кирпича в 1, 5 кирпича
Крыша металлочерепица толщина 0.5 мм
Окна Veka немецкие
Пенопласт 10 см
Отмостка брусчатка 1 м
Заезд машины также брусчатка.
По периметру забор из сетки.
Электричество 10 киловатт
Скважина
Септик 30 кубов
заведено в дом
Цена 90тыс $
Начало строительства март
Второй дом площадь 135квт.м.
Площадь земельного участка 5.8 сот.
Размер земельного участка
24 метров на 20 метров
В комплектацию входит
Ленточный фундамент на сваях
И эта плита с арматурной сеткой 10 см.
Кладка кирпича в 1, 5 кирпича
Крыша металлочерепица толщина 0.5 мм
Окна Veka немецкие
Пенопласт 10 см
Отмостка брусчатка 1 м
Заезд машины также брусчатка.
По периметру забор из сетки.
Электричество 10 киловатт
Скважина
Септик 30 кубов
заведено в дом
Цена 98тыс$
Начало строительства март
- Характеристика здания: состояние дома: без отделочных работ • перекрытие: деревянное • крыша: металлочерепица
- Характеристика помещения: утепление: без утепления
- Коммуникации: канализация: септик
- Вода: скважина
- Помещения: количество спален: 3
- На территории есть: забор: сетка
- Уникальные преимущества: Возможна рассрочка
- Объявление создано 12 фев. ·
- ID 33941633 ·
- Просмотров 0
- · Сохранений в избранное 0