




фото · 1 из 5

Смотреть все фото
Смотреть на карте
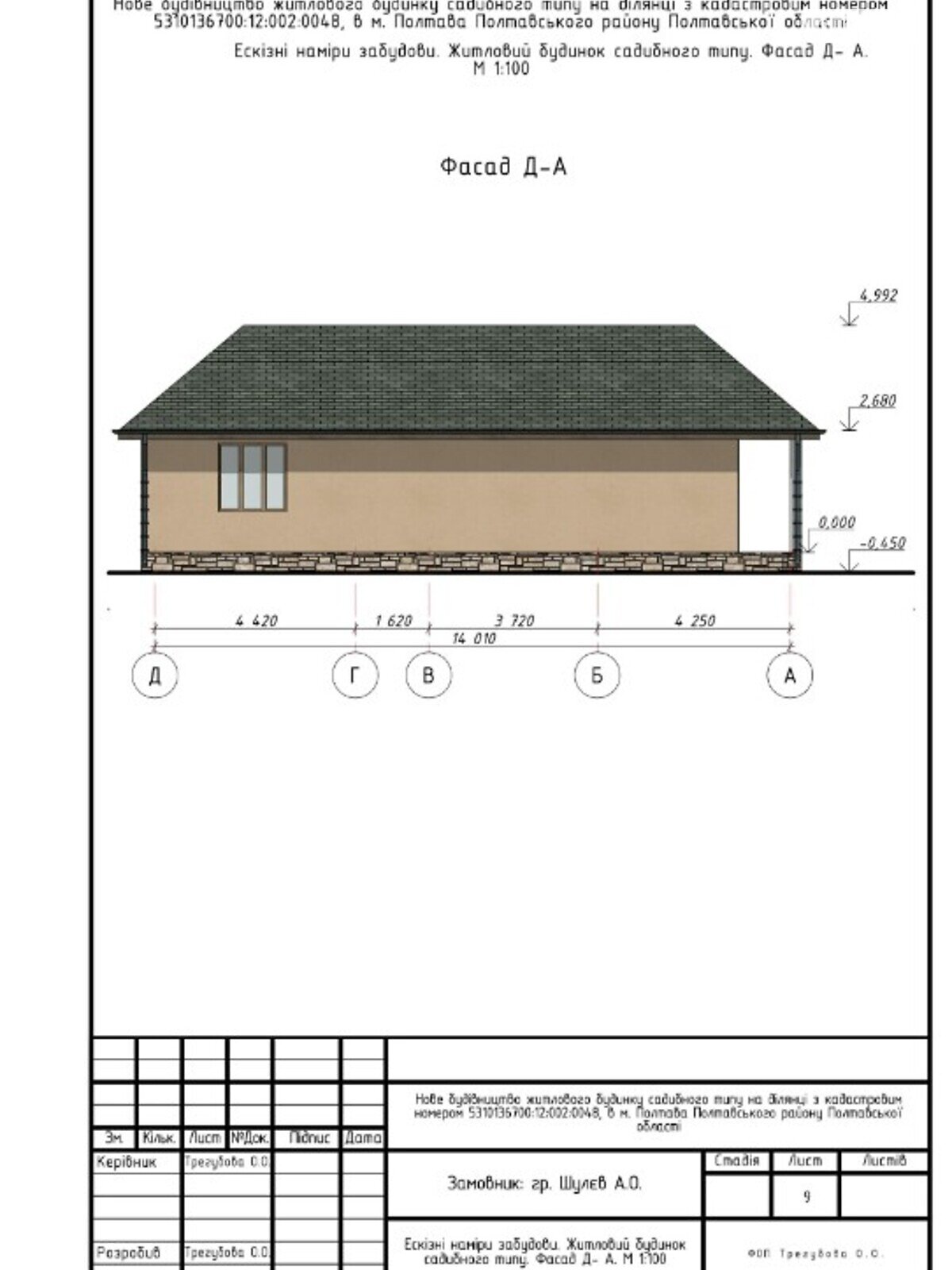
Продажа 1 этажного дома с гаражом и участком на 6.5 сотки, 65 кв. м, 2 комнаты, на ул. Сортировочная • ID 25587456
40 000 $ за объект · 1 690 000 грн · 615 $
за м²
В процессе проверки
Сейчас DIM.RIA ждет данных от продавца
Продавец сообщил, что готов пройти проверку на DIM.RIA. Как только получим документы или видео об этом объекте – сразу все расскажем тебе.
- 2 комнаты · 1 этаж
- Подвальный / цокольный этаж
- Общая площадь 65 м²
- Участок 6.5 сотки
- Стены монолитно-кирпичные
- Построен в 2023
- Предложение от собственника
- Без комиссии
- Новостройка
Описание от продавца
- У реки
- Спокойный район
- Жилье не использовалось с момента постройки
- Продаётся новый дом под ремонт! Год постройки 2023 год! Полтава(Дублянщина)!
65 кв.м.+6.5 сот земли.
Дом высокий! Высота потолков 4 метра.
С подвалом! Утеплен! В подарок стройматериалы для внутренних работ! Залит фундамент 40 кв. м рядом с домом, можно достроить гараж или ещё комнаты.
Хорошее расположение, рядом магазины, остановка транспорта, школа рядом, речка и пляж!
Звоните за более подробной информацией +XXXXXXXXXXXX
XXX XXX XXXX
Цена 40 000 дол.
- Особенности планировки: с гаражом • участок
- Характеристика гаража: с подвалом
- Характеристика здания: состояние дома: строительная отделка • перекрытие: деревянное • крыша: металошифер
- Характеристика помещения: высота потолка, м: 4 • идет ремонт • утепление: внешнее • гипсокартонные конструкции: потолок
- Наружная отделка: без отделки
- Двери и окна: тип окон: металопластиковые • количество камер стеклопакета: 3
- Помещения: санузел: совмещенный • количество спален: 1 • погреб
- На территории есть: огород • стройматериалы • забор: металический лист • ворота: простые металлические
- Характеристика участка: Расположение: в населенном пункте • рельеф: равнинный • грунт: чернозем
- До центра города: удаленность: до 15-ти минут • как добираться: на транспорте
- Школа: удаленность: до 10-ти минут • как добираться: пешком
- Больница: удаленность: до 10-ти минут • как добираться: на транспорте
- Магазин • рынок: удаленность: до 5-ти минут • как добираться: пешком
- Ближайшая ж • д станция: удаленность: до 10-ти минут • как добираться: на транспорте
- Ближайшая зона отдыха: тип: пляж, река / озеро • удаленность: до 10-ти минут • как добираться: пешком
- Внутренняя отделка: черновая штукатурка
- Уникальные преимущества: Высокие потолки • Рядом со школой
Объект не такой, как в описании?
Расскажи нам, что не так – мы все проверим
- Объявление создано 13 лис. ·
- ID 25587456 ·
- Просмотров 0
- · Сохранений в избранное 0