

















фото · 1 из 18

Смотреть все фото
Смотреть на карте
Продажа 1 этажного дома с гаражом и участком на 703 кв. м., 75.2 кв. м, 4 комнаты, на провулок Гірничорудний • ID 33627672
50 000 $ за объект · 2 103 500 грн · 665 $
за м²
Перевірений будинок
продавец предоставил техпаспорт
Проверено по техпаспорту
Дата последней проверки 21 жов.
- Общая площадь 75.2 м² · жилая 53 м² · кухня 8.4 м²
- 4 комнаты
- Участок 703 м²
Описание от продавца
- 4 комнаты · 1 этаж
- Общая площадь 75.2 м² · жилая 53 м² · кухня 8.4 м²
- Участок 703 м²
- Стены из кирпича
- Предложение от собственника
- Вторичная недвижимость
- С участком
- Возле леса
- Спокойный район
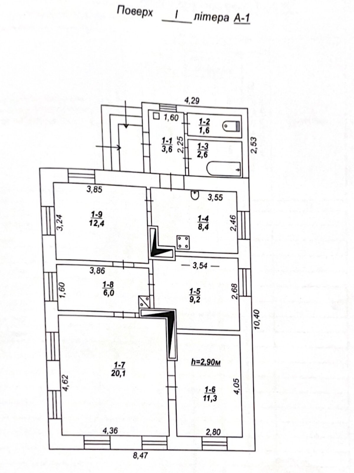
- Продается ухоженный кирпичный дом общей площадью 75, 2 м² на земельном участке 7 соток (703 м²). Подробный план дома в фотографиях.
Расположение в глубине улицы, в тихом переулке без транзитного движения. Дом теплый, сухой, с высокими потолками (2, 9 м) и продуманной планировкой:
просторная гостиная 20 м²,
три жилые комнаты,
кухня 8, 4 м²,
ванная комната, туалет, 2 коридора
На территории также есть:
летняя кухня 2, 5 м2,
гараж 2, 5 м2,
погреб 2, 2 м2,
водоколонка,
аккуратный двор с зеленым газоном и садовыми деревьями.
Дом расположен в спокойном переулке с асфальтированным подъездом и хорошими соседями. Рядом школа 8хв, магазины(АТБ 5хв, рынок 5хв), остановка транспорта( остановка Восход 2 хв), детский сад ( 4 хв). Идеальный вариант для тех, кто ищет комфортное жилье с собственным двором и хозяйственными постройками.
Дом 40 тыс.$ + участок 10 тыс.$
- Документы готовы к продаже
- Дом без задолженностей
Контакт: Александр XXX XXX XX XX
- Особенности планировки: с гаражом • беседка
- Характеристика помещения: высота потолка, м: 2.9
- Пол (покрытие): дощатый пол
- Вода: центральный водопровод
- Подогрев воды: двухконтурный котел
- Помещения: количество спален: 3 • гараж: во дворе • котельная / бойлерная • гостиная
- Оборудование • мебель • удобства: ванна • электричество • газ • интернет
- На территории есть: огород • поливная система • летняя кухня • хоз. строения (сарай) • погреб(а) • сад
- Уникальные преимущества: С беседкой • С гаражом
Объявление неактуально или информация неточна?
- Объявление создано 21 жов. ·
- ID 33627672 ·
- Просмотров 0
- · Сохранений в избранное 0