































фото · 1 из 32

Смотреть все фото
Смотреть на карте
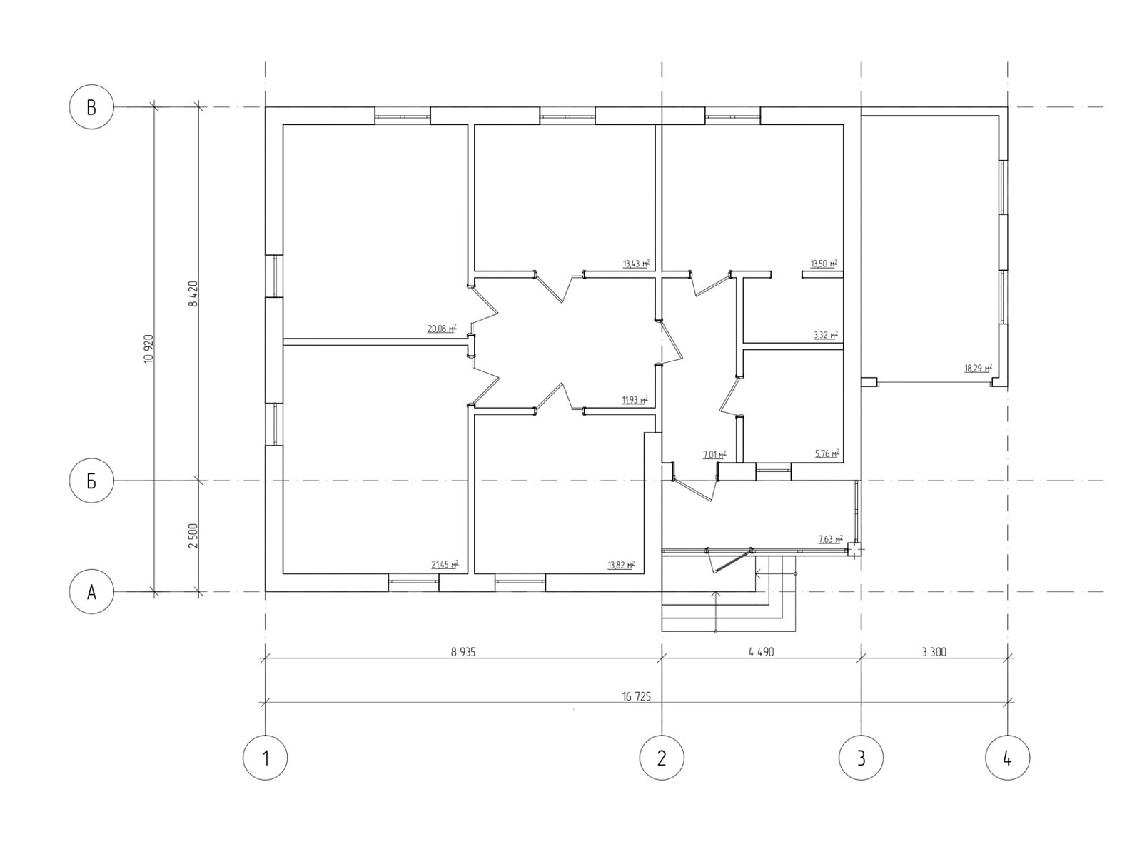
Продажа 1 этажного дома с верандой и участком на 5 соток, 136 кв. м, 4 комнаты, на пер. Цветочный 7 • ID 33579649
139 000 $ за объект · 5 872 750 грн · 1 022 $
за м²
Перевірений будинок
Проверено по видеозвонку
Отчет от 11 окт.
- Новостройка
- 4 комнаты
- Участок 5 соток
- Предложение от собственника
- Без комиссии
- С отоплением
- С гаражом
- С верандой
Описание от продавца
- Общая площадь 136 м² · жилая 69 м² · кухня 13.5 м²
- Стены блочно-кирпичные
- Построен в 2017
- єОселя
- Спокойный район
- Выгодная цена
- Жилье не использовалось с момента постройки
- СОВРЕМЕННЫЙ НОВЫЙ дом в Корнине. Степень готовности более 90%.
Дом строился для семьи - качество строительства и материалы на самом высоком уровне.
Продуманный и практичный план дома - разделены жилая и техническая зона.
Новым владельцам остались только чистовые работы, в зависимости от предпочтений.
межкомнатные двери
- покраска стен или обои
- паркет или ламинат
- выбор плитки и обустройство ванной комнаты
или использовать существующий дизайнерский проект
ФУНДАМЕНТ:
ленточный
армирующий пояс
ДОЛГОВЕЧНАЯ И КАЧЕСТВЕННАЯ КРЫША:
сталь оцинкована толщиной 0, 5 мм
двойной стоячий и одинарный лежачий фальц РУЧНОЙ работы
желоба и водосточная система - нержавеющая сталь
СТЕНЫ:
пенобетон и кирпич
ЭНЕРГОЭФФЕКТИВНОСТЬ И ЭКОЛОГИЧНОСТЬ:
утепление чердака - минеральная вата 30 см.
стены - снаружи пенопласт-пеногазобетон-пенопласт-кирпич
медная система отопления
энергоэффективные окна
при возведении дома и штукатурка - известково-цементный раствор
деревянный пол (сосна 40 мм) на дубовых лагах с продухами
система вентиляции с рекуперацией тепла для дома
утепленный фундамент
ПРЕИМУЩЕСТВА:
рядом магазины и остановка автотранспорта
освещенная улица
существующий высокоскоростной интернет
тихий переулок
красивый двор, зона для беседки
изысканный архитектурный стиль
большая застекленная веранда
просторный гараж
под гаражом большой погреб
Для потреби - есть возможность посмотреть видео.
Дом ждет своих владельцев в спокойном районе рядом с городом.
- Характеристика гаража: с подвалом
- Характеристика здания: состояние дома: строительная отделка • перекрытие: деревянное • крыша: металлические листы
- Характеристика помещения: высота потолка, м: 2.75 • утепление: внешнее и внутреннее
- Отделка потолка: штукатурка • обои • покраска
- Пол (покрытие): ламинат • паркет • дощатый пол
- Внутренняя отделка: обои • чистовая штукатурка
- Наружная отделка: окрашено (покраска)
- Вода: центральный водопровод
- Отопление: газовое
- Подогрев воды: двухконтурный котел
- Помещения: количество спален: 3 • гараж: в пристроенном помещении • совмещенный санузел
- Когда нет света: есть интернет • есть мобильная связь • есть водоснабжение • есть газ
- На территории есть: огород • погреб(а) • забор
- Мебель: нет
- Особенности планировки: терраса
- Уникальные преимущества: С верандой • С гаражом • С отоплением
- Оборудование • мебель • удобства: электричество • газ • вывоз отходов • интернет • канализация септик
Объявление неактуально или информация неточна?
- Объявление создано 11 окт. ·
- ID 33579649 ·
- Просмотров 0
- · Сохранений в избранное 0