

















фото · 1 из 18

Смотреть все фото
Смотреть на карте
Продажа 2 этажного дома с верандой и участком на 6 соток, 200 кв. м, 4 комнаты, на ул. Ольгерда Бочковского 121 • ID 33782929
250 000 $ за объект · 10 562 500 грн · 1 250 $
за м²
В процессе проверки
Сейчас DIM.RIA ждет данных от продавца
Продавец сообщил, что готов пройти проверку на DIM.RIA. Как только получим документы или видео об этом объекте – сразу все расскажем тебе.
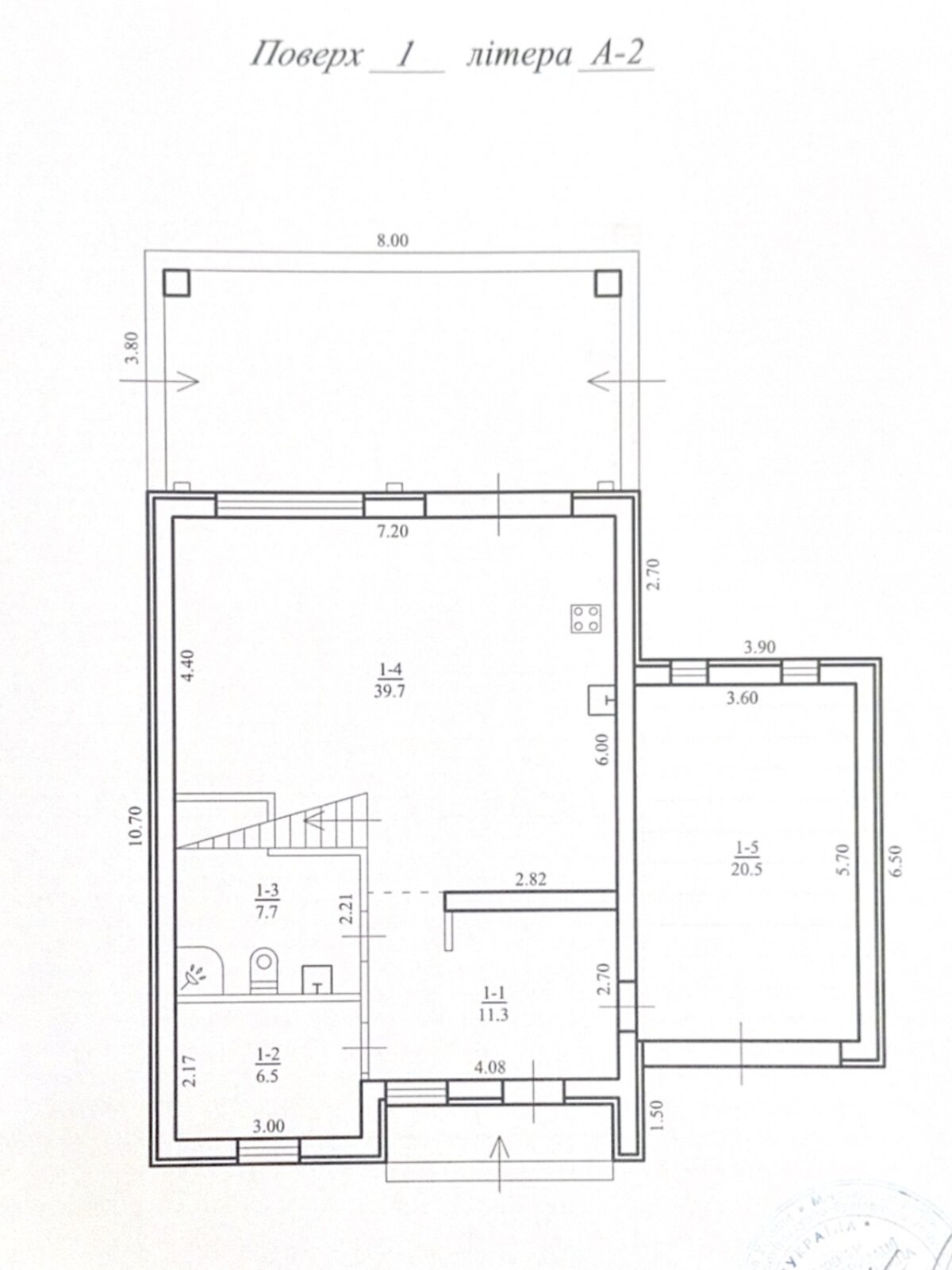
- 4 комнаты · 2 этажа
- Общая площадь 200 м² · жилая 130 м² · кухня 35 м²
- Участок 6 соток
- Стены из пеноблока
- Построен в 2024
- Предложение от посредника
- Вторичная недвижимость
Описание от продавца
- Возле леса
- Престижный район
- В продаже дом, который не просто строили. Его создавали.
Современный стиль, проект 2025 года и одна из самых желанных локаций города.
Общая площадь 200 м². Дом на финальной стадии готовности, строился качественно и продуманно: планировка в топе, материалы только уровнем выше стандартов, ощущения «это то, что искали».
Первый этаж:
Светлая кухня-гостиная с панорамным выходом на террасу и задний двор.
Лаунж-пространство для отдыха.
Бассейн.
Зона озеленения и свободного пространства для вашего досуга.
Санузел.
Хозкомната.
Второй этаж:
Две отдельные комнаты.
Санузел.
Просторная гардеробная.
Большая спальня с выходом на террасу идеальное место для теплых вечеров и личного комфорта.
Коммуникации:
16 кВт мощности заведено
Вода
Газ
Центральная канализация
Участок ровный, правильной формы идеальная база под благоустройство.
Это тот самый объект, про который говорят: «Искал нашёл».
Локация, стиль, планировка, возможности всё сходится в одном доме.
Звоните покажу дом, который вызывает эмоции уже с порога.
- Особенности планировки: с бассейном • с верандой • участок
- Характеристика здания: перекрытие: железобетонное
- Характеристика помещения: высота потолка, м: 3
- Вода: центральный водопровод
- Отопление: газовое
- На территории есть: персональный водоем: бассейн • барбекю
- Уникальные преимущества: С верандой
- Оборудование • мебель • удобства: электричество • газ • центральная канализация • интернет
Объект не такой, как в описании?
Расскажи нам, что не так – мы все проверим
- Объявление создано 4 дек. ·
- ID 33782929 ·
- Просмотров 0
- · Сохранений в избранное 0