



























фото · 1 из 28
Продажа 2 этажного дома с участком на 9 соток, 160 кв. м, 4 комнаты, на ул. Набережная 24 • ID 34002449
Набережная улица
·
Буча
210 000 $ за объект · 9 229 500 грн · 1 313 $
за м²
Перевірений будинок
Проверено по видеозвонку
Отчет от 25 фев.
- Новостройка
- 4 комнаты
- Участок 9 соток
- Предложение от представителя застройщика
- Без комиссии
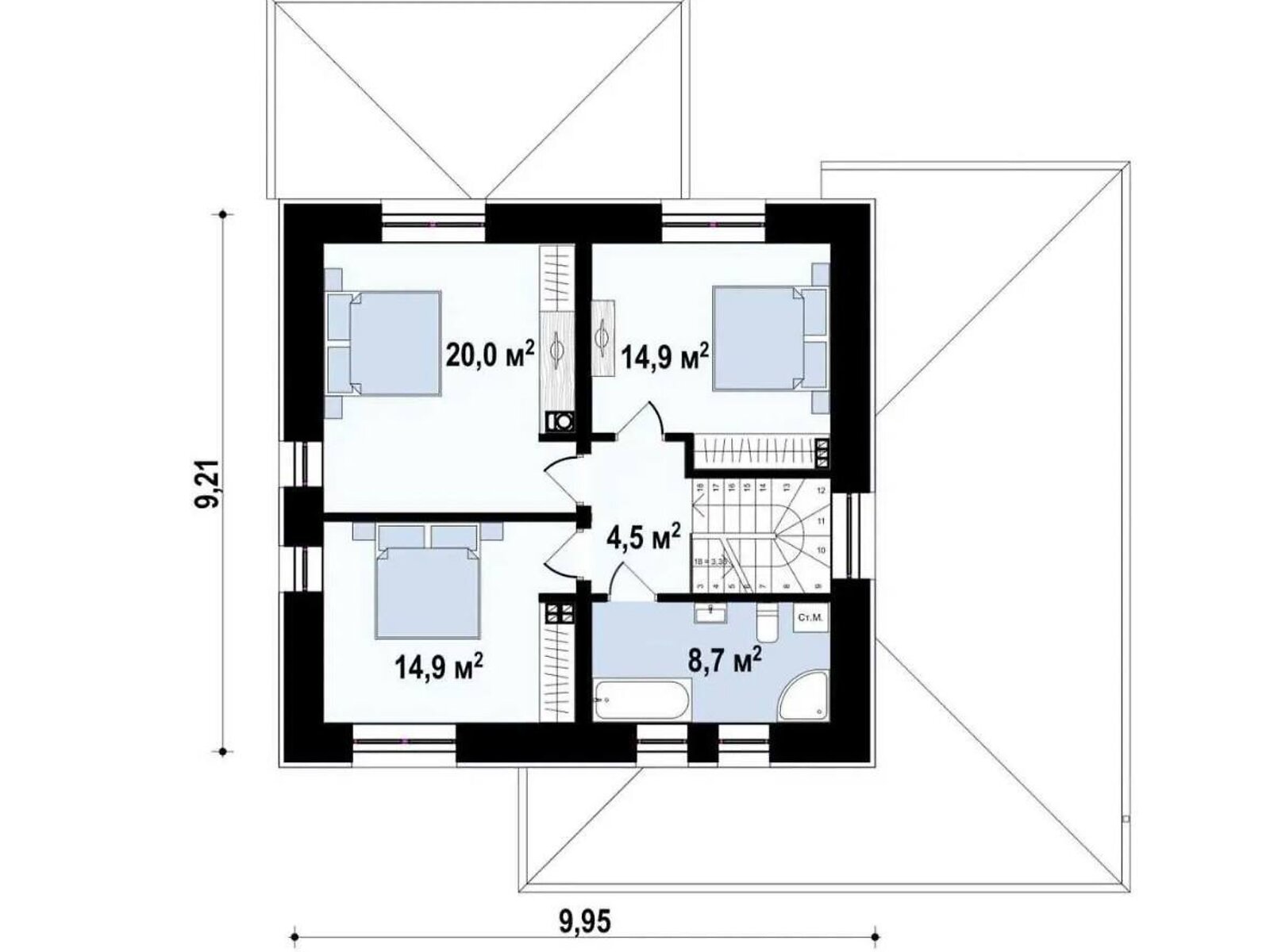
- Общая площадь 160 м² · жилая 62 м² · кухня 25.6 м²
- Стены из газобетона
- Сдача в 2025
- єВідновлення
- єОселя
- Возле леса
- У реки
- Престижный район
Описание от продавца
- Лесная Буча
Стены - газоблок 375мм
Наружное утепление
Большой участок - девять соток.
Тихое место.
Удобный выезд на Киев
Возможно оформление на первого владельца, или под государственные средства.
Газ подведен.
Звоните или пишите в личные сообщения!
- Жилье: Дверь шириной более 90 см
- Двор: Автоматические ворота
- Характеристика здания: состояние дома: без отделочных работ • перекрытие: железобетонное • крыша: металлочерепица
- Характеристика помещения: высота потолка, м: 2.8 • утепление: внешнее
- Отделка потолка: без обработки
- Пол (покрытие): без отделки
- Вода: центральный водопровод
- Отопление: газовое
- Подогрев воды: двухконтурный котел
- Помещения: количество спален: 4 • гараж: на первом этаже • котельная / бойлерная
- Когда нет света: есть интернет • есть мобильная связь • есть водоснабжение • работает отопление • есть газ
- На территории есть: огород • забор
- Мебель: нет
- Особенности планировки: терраса
- Уникальные преимущества: Возможна рассрочка • Индивидуальное отопление
- Оборудование • мебель • удобства: электричество • газ • вывоз отходов • интернет • канализация септик
- Вход в дом: Вход шириной более 90 см
Объявление неактуально или информация неточна?
- Объявление создано 25 фев. ·
- ID 34002449 ·
- Просмотров 0
- · Сохранений в избранное 0