














фото · 1 из 15

Смотреть все фото
Смотреть на карте
Снять офисное помещение на ул. Баррикадная 7, помещений - 4, этаж - 4 • ID 33662109
534 378 грн · 12 648 $
Информация неточна?
Продавец не подтвердил данные об этой недвижимости. Расскажите, что не так, и мы проверим
Без проверки
Описание от продавца
Продавец не подтвердил информацию об этом объекте (не заказывал проверку с представителем DIM.RIA, не отправлял видео или документы)
- Бизнес-центр
- 4 помещения
- 4 этаж из 4
- Общая площадь 1581 м² · полезная 1581 м²
- Предложение от посредника
- Вторичная недвижимость
- Охраняемая территория
- Престижный район
- В центре
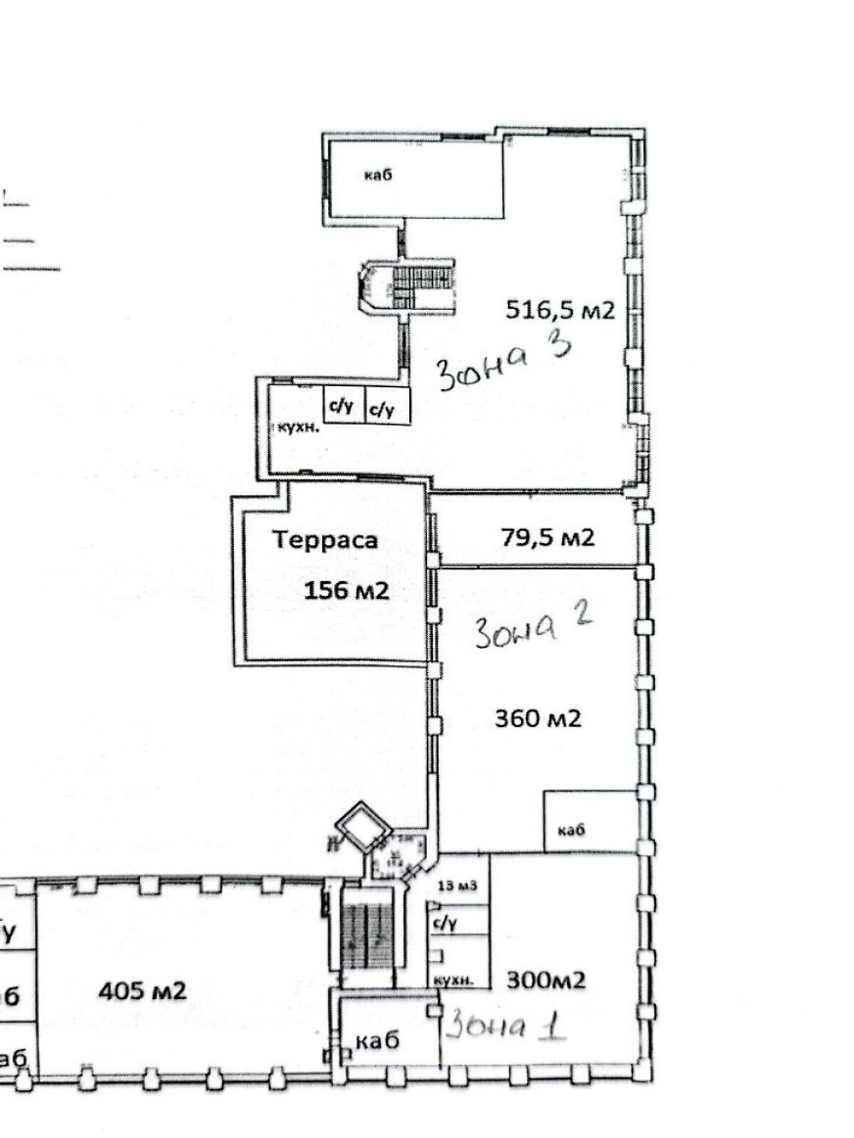
- Сдам офисное помещение, можно целый этаж, в самом центе Днепра, БЦ Фабрика
+ общая площадь: 1581 м2
+ можно частями: 405 м2, 300 м2, 360 м2, 516м2
+ этаж: 4/4
+ с ремонтом
+ местоположение: возле Меноры (ул. Баррикадная)
Цена: 8 $, за м2 (аренда) + 3 $ за м2 (эксплуатационные) + электричество и вода по счетчикам
Не упустите свою возможность, звоните!
Соседко Дмитрий, АН Риелтор Днепр
ул. Мечникова 10 Б, офис 705
- Характеристика здания: состояние: хорошее • часть здания
- Отопление: индивидуальное электрическое
- Помещения: санузел: 1 на этаж
- Оборудование • мебель • удобства: пропускная система • электричество • интернет • кабельное ТВ
- Подъезд: охранник • вахтер • домофон • бронированная дверь • видеонаблюдение на территории • противопожарная система • видеонаблюдение в помещении
- Объявление создано 29 окт. ·
- ID 33662109 ·
- Просмотров 0
- · Сохранений в избранное 0
Пользуется спросом на DIM.RIA
Вас могут заинтересовать
Другие типы недвижимости в Днепре