Может вас заинтересовать













фото · 1 из 13

Смотреть все фото
Сдается коммерческое помещение на пл. Ивана Франко, площадь 550 кв.м • ID 33777913
845 000 грн · 20 000 $
Без проверки
Описание от продавца
Продавец не подтвердил информацию об этом объекте (не заказывал проверку с представителем DIM.RIA, не отправлял видео или документы)
- Бизнес-центр
- 18 помещений
- 1 этаж из 4
- Общая площадь 550 м²
- Предложение от посредника
- Без комиссии
- Вторичная недвижимость
- Оперативный показ
- Срочно
- Выгодная цена
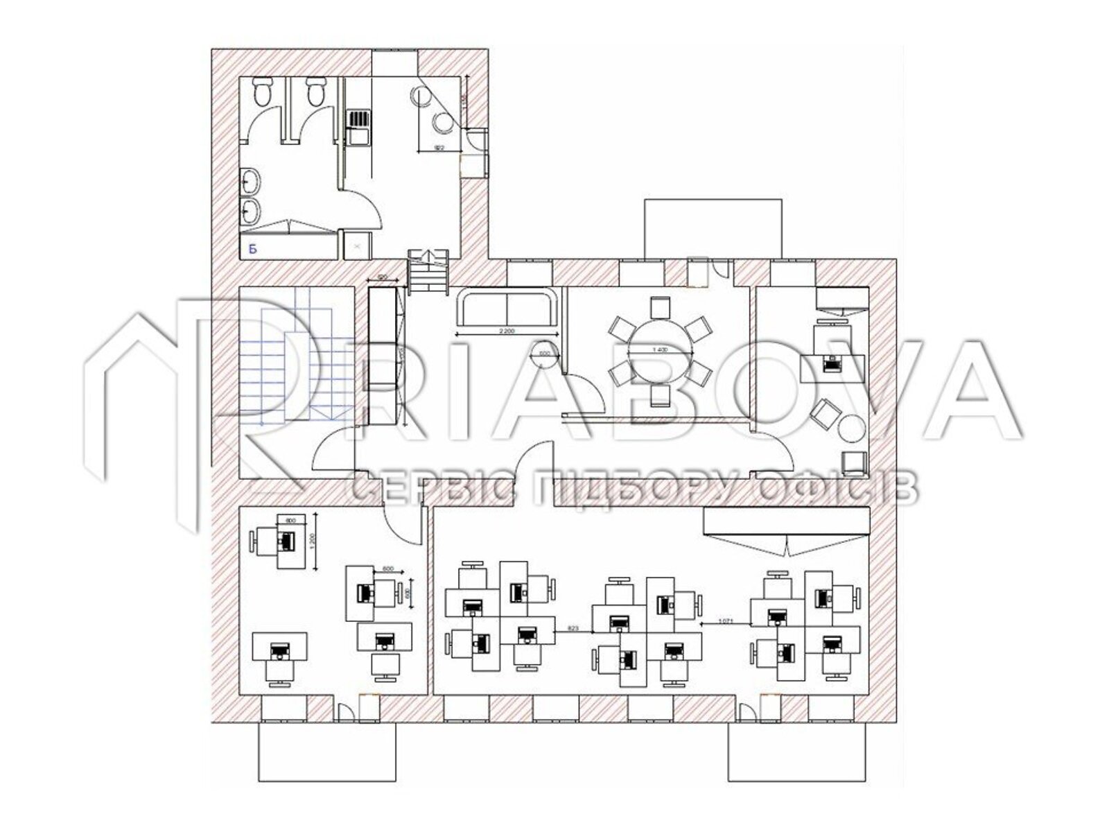
- Аренда нежилого помещения площадью 550 метров, с 1 по 4 этаж, 18 кабинетов, нежилой фонд. Состояние ремонта: новый ремонт, меблирование: нет. Преимущества: с отдельным входом, фасадный вход, фасадные окна, парковка, тераса/балкон, высокие потолки, мокрые точки. Собственник плательщик НДС. Арендная ставка: 36.4 USD/метр (с НДС). Общая стоимость: 20 000 USD/месяц (с НДС) + коммунальные. Все цены подлежат обсуждению в индивидуальном порядке. Помещение расположено в Шевченковском районе, на ул. Ивана Франко. Ближайшие станции метро: Университет, Золотые ворота, Театральная, Площадь Украинских героев (Льва Толстого), Крещатик, Майдан Независимости, Дворец Спорта, Вокзальная, Олимпийская, Почтовая площадь, Кловская. На момент последнего обновления помещение свободно. Звоните для уточнения деталей и записи на просмотр. ID помещения: 21970
- Характеристика здания: класс объекта: C • состояние: отличное • фасадное помещение • отдельное помещение • отдельное здание
- Характеристика помещения: высота потолка, м: 4
- Помещения: офисные помещения
- Оборудование • мебель • удобства: пропускная система
- Объявление создано 3 дек. ·
- ID 33777913 ·
- Просмотров 0
Пользуется спросом на DIM.RIA
Вас могут заинтересовать
Недвижимость в Киеве по назначению