



фото · 1 из 4

Смотреть все фото
Смотреть на карте
Сдается коммерческое помещение в на ул. Казацкая, площадь 50.7 кв.м • ID 33604341
5 000 грн · 119 $
Информация неточна?
Продавец не подтвердил данные об этой недвижимости. Расскажите, что не так, и мы проверим
Без проверки
Описание от продавца
Продавец не подтвердил информацию об этом объекте (не заказывал проверку с представителем DIM.RIA, не отправлял видео или документы)
- Здание / комплекс / павильон
- 2 помещения
- 1 этаж из 2
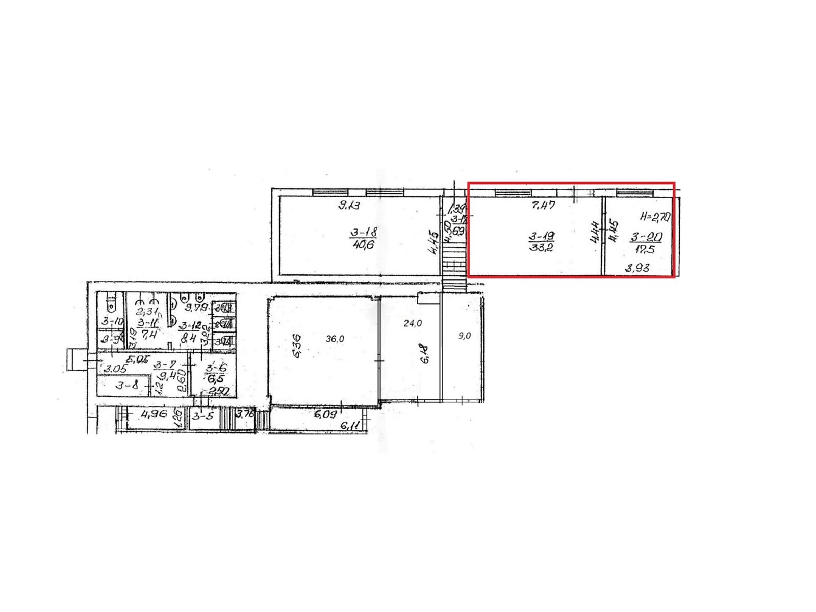
- Общая площадь 50.7 м²
- Предложение от собственника
- Без комиссии
- Вторичная недвижимость
- Від власника.
Оренда приміщення 50, 7 кв.м. (17, 5 + 33, 2 кв.м.).
Під офіс / торгівлю / чистий склад. НЕ під виробництво.
!!! Благодійні організації та виконавців державних замовлень і т.п. просимо не турбувати !!!
В'їзд/виїзд на прилеглу територію можливий з боку вул. Козацька (в`їзд поряд з будівлею 54) та з вул. Інструментальна.
Приміщення розділене стіною. Більше приміщення (33, 2 кв.м.) має додатковий окремий широкий вхід.
Опалення - електро, власними обігрівачами.
Електроенергія згідно лічильника (аванс на кожний наступний місяць з подальшим корегуванням залежно від споживання).
Наявний санвузол (ч/ж) загального користування в будівлі, де розташоване приміщення. Також у дане приміщення підведено воду та каналізацію (за потреби орендар може встановити раковину).
Зупинки громадського транспорту на відстані орієнтовно до 50 м.
Оплати до 5 числа поточного місяця. Комунальні витрати оплачуються окремо.
Закрита територія у вечірній час. Можлива стоянка автомобіля (оплачується додатково).
Опалення /за потреби/ - електрика (своїми обігрівачами).
Комунальні послуги оплачуються окремо.
З агенціями нерухомості договори не укладаємо, просимо не турбувати з цього приводу.
- Объявление создано 12 окт. ·
- ID 33604341 ·
- Просмотров 0
- · Сохранений в избранное 0
Пользуется спросом на DIM.RIA
Вас могут заинтересовать
Недвижимость в Чернигове по назначению