
















































фото · 1 из 49

Смотреть все фото
Смотреть на карте
Долгосрочная аренда дома, от посредника на ул. Садовая • ID 33699789
Садовая улица
·
Старые Петровцы
169 200 грн · 4 000 $
Информация неточна?
Продавец не подтвердил данные об этой недвижимости. Расскажите, что не так, и мы проверим
Без проверки
Описание от продавца
Продавец не подтвердил информацию об этом объекте (не заказывал проверку с представителем DIM.RIA, не отправлял видео или документы)
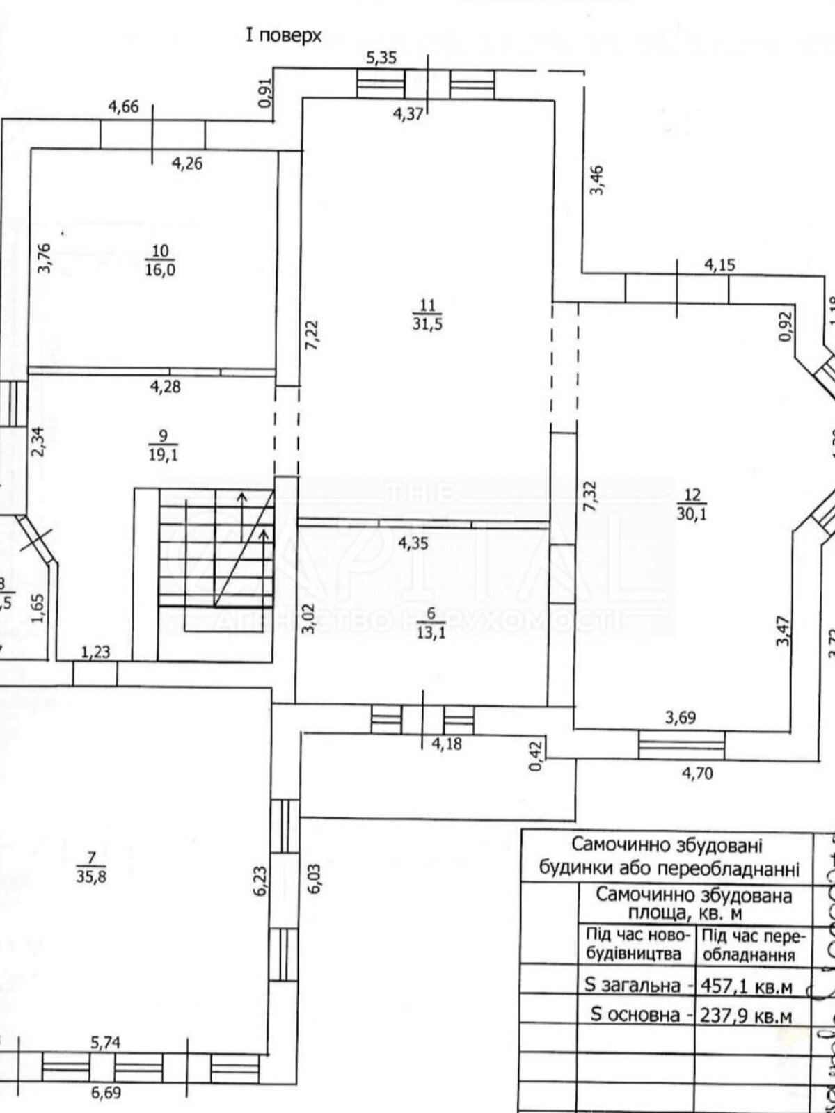
- 6 комнат · 2 этажа
- Общая площадь 450 м² · жилая 237 м² · кухня 30 м²
- Коммунальные 4000 грн зимой · 2000 грн летом
- Стены из кирпича
- Предложение от посредника
- Комиссия за услуги 50 %
- Вторичная недвижимость
- Возле леса
- Красивый вид
- Спокойный район
Удобства
Можно с животными
Индивидуальное
Бойлер
Стиральная машина
Посудомоечная машина
Холодильник
Кондиционер
Есть резервное питание
- Просторный и безопасный дом для аренды в Старых Петровцах.
Местоположение: Старые Петровцы, Вышгородский район.
Площадь дома: 450 м².
Участок: 10 соток.
Поверхность: 2 этажа цокольный.
До Киевского моря: лишь 300 метров.
Безопасность и автономность
Дом расположен в закрытом коттеджном городке "Днипро" с круглосуточной охраной.
Полноценный цокольный этаж с ремонтом и мебелью выполняет роль надежного укрытия: здесь есть гостиная, библиотека, сауна, прачечная и котельная.
Защитные внешние роллеты на всех окнах.
Бесперебойник для котла и генератор обеспечивают автономность в случае отключения электроэнергии.
Комфорт и пространство
Бассейн с подогревом, сауна, терраса с холодильником и посудомоечной машиной. Газовый барбекю с плитой.
Ландшафтный дизайн, автоматический полив, автоматические ворота.
Кондиционеры в каждой комнате.
Коммуникации:
Своя скважина и канализация.
Газовое отопление, радиаторы и теплый пол на 1-м и цокольном этажах.
Планирование:
1 этаж: просторная кухня, гостиная, основной санузел, хозяйственная спальня с гардеробной.
2 этаж: игровая зона, 2 спальни, 2 санузла, кабинет.
Цокольный этаж: библиотека, гостиная, сауна, прачечная, технические помещения.
- Особенности планировки: с бассейном
- Жилье: Дверь шириной более 90 см • Душ без ступеней
- Двор: Автоматические ворота
- Характеристика помещения: утепление: внешнее и внутреннее
- Вода: центральный водопровод • скважина
- Двери и окна: защитные ролеты на дверях
- Подогрев воды: централизованный
- Оборудование • мебель • удобства: телевизор • камин • сушилка для белья • душевая кабина • ванна • электрочайник • электрическая плита • духовой шкаф • микроволновая печь • шкаф-гардероб • Встроенная кухня • диван • вытяжка • вывоз отходов • письменный стол
- Когда нет света: есть мобильная связь • есть водоснабжение • работает отопление
- Подъезд: защитные роллеты на окнах
- На территории есть: персональный водоем: бассейн • ландшафтный дизайн • поливная система • барбекю
- Особенности планировки: подогрев полов • терраса
- Вход в дом: Вход шириной более 90 см
- Объявление создано 10 ноя. ·
- ID 33699789 ·
- Просмотров 0
- · Сохранений в избранное 0